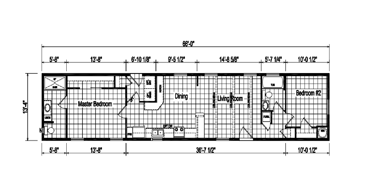
Eagle River 70F451 14x66

Available for customer order!

2 Bedrooms, 2 Baths

40# Roof

Oak MDF Beams

Paddle Fan in Living Room

Pine Walls in Living Room and Hallway

Stainless Steel Appliances

Hickory Cabinets

Hutch in Kitchen

18 cu ft Refrigerator

Gas Range

Microwave

Dishwasher

Sliding Closet Door in Master Closet

60” 1 PC Shower with Door in Master Bath

40 Gal. Electric Water Heater

Transom Window in Hall Bath

Ice Guard

Wind Wrap

7/16” OSB Backer

Exterior Faucet

Oil Furnace

200 AMP Service

Insulation R Value: R-19 Walls, R-33 Ceiling, R-22 Floor

Exterior: Almond with Blue Shutters

All of our homes are customizable and available to order with your desired specifications.

Prices, options, and floorplans may change without notice. Images may not show actual display homes.